On July 6, 2021, Informed Infrastructure Editorial Director Todd Danielson interviewed Steven M. Baldridge, P.E., S.E., LEED AP, president of Baldridge & Associates Structural Engineering (BASE), which he founded in 1995. A leading engineering firm in areas of high natural risk, the company now has offices in Hawaii, Chicago, Florida, Guam and India.
The topic of the interview was the deadly June 24, 2021, failure and collapse of the Champlain Towers South in Surfside, Fla. The full interview video can be viewed at the top of this page or at bit.ly/3ku2B65 but we wanted to include some excerpts in this issue.
Danielson: Can you summarize your initial thoughts about the collapse, knowing the investigation is just beginning and actual data are scarce?

Baldridge: It’s interesting, because we were talking in the office a little bit about how design was done historically and how design is done now. Sometimes you have nice little rules of thumb where you can kind of look at things and get a good idea of where you’re heading, if you’re heading in the right direction.
Interestingly enough, the city there made available on the internet existing permit drawings for the project, so I opened those up and started taking a look at them. I’m like, “Yeah, that span appears to be pretty long for the thickness of the slab up in the towers.” Also, which seemed a little bit odd but might’ve been the case back then, the concrete strength was fairly low, at least what was indicated in the permit drawings. Initially, this caught my eye that they might have something called punching shear stresses that could be kind of on the high side.
Danielson: Because of what appears to be progressive collapse, what do you believe to be the main contributing factors?
Baldridge: It’s going to take some time to really see what happened there. Unfortunately, a lot of the evidence is going to be at the bottom of the rubble pile and may actually be destroyed, whatever video evidence there is. But having the existing drawings provides a blueprint to model the building and see if the building itself may have had some design weaknesses that could have contributed to the ultimate progressive collapse or disproportionate collapse of the building.
Danielson: What might forensic engineers examining the collapse be looking at and doing to try to determine the cause? What do they do?
Baldridge: With the drawings, you can start to model the building from top to bottom, and then from those models you can see, “Hey, does it meet Code today? Did it meet Code back then?” From the rubble pile, you can actually start to test some of the materials to see what was actually constructed. Was it constructed with the right-strength concrete? Was there a low reserve capacity? Maybe the concrete, a lot of times it comes up higher than specified. Hopefully, find some of the reinforcing steel at the base of the building and see if there are any signs of excessive corrosion, in particular, maybe in some of the columns and beams at those lower levels.

(All images can be seen in a larger scale in this story's online version.)
Danielson: Obviously, they had to for safety, but they recently collapsed the whole building. Will that make it more difficult for them to find things out?
Baldridge: Safety of USAR teams that are out there is paramount. There’s so many things in play right now, whether it be trying to rescue anyone who might be left, trying to retrieve the remains of loved ones, and then, of course, the people on the site day in and day out who are actually at risk on that rubble pile. It’s a shame that they couldn’t preserve that building, because it would have been a very good way to see what was going on in the existing building. Are there any areas where maybe something was overloaded, whether it’s in the parking or somebody’s unit? A very easy way to verify what was permitted was actually built. But safety is the number one priority. There is, I understand, another similar building down the street that was built kind of by the same team, so you still have something that you can go back and look at.
Danielson: After you looked at those drawings that were made available, you did some hand calculations as well as 3D analysis using software based on those building plans made available by the city. Can you share what you found?
Baldridge: Sure. The initial hand calcs actually showed that there were some punching shear stresses that were on the high side, and we wanted to go back and see. You don’t want to kind of bring that up without taking a closer look at it. We modeled the floor slab in a 3D analysis software, and actually it appears, based upon loads that would have been used for the design, that there might be some punching stresses that are actually exceeding Code allowable, which wouldn’t necessarily cause failure. But now you’re starting to eat into the safety factors that are inherent to Code and that provides some reserve capacity.
Another key and important issue is back then, analysis methods available were fairly sparse. One thing that was added to the Code after that design is something called structural integrity steel. And that was a result of other collapses that had occurred, such as the Murrah building in Oklahoma City, finding ways to make a building more resilient and redundant and provide alternate load paths, so if you do have failure of a column, ideally, you don’t have failure in the rest of the building. At that point, no building had that in there as part of the design. It would be something that creates a weakness in the building under a catastrophic loading scenario like this.
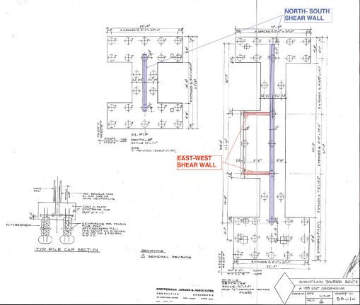
We looked a little bit more through the drawings and found a couple other things that were a little bit concerning. Again, you’re not looking to point the finger of blame, but it’s worth taking a look at in more detail and analyzing the building as it was built, or as it was permitted. Shear walls in one direction of the building were pretty short, and there were only two of them. So what may have happened, too, is if something failed somewhere else in the building and started pulling the building sideways, the slab column joint would have now been helping with lateral capacity of the building, which could have overloaded the slab column joint and punching shear. Of course, I’d imagine over 40 years, this building has been through some decent wind occurrences, so it must have enough capacity for that. Some of the witnesses who were in the building, one said the building swayed like a sheet of paper, and that may have been due to the fact that the shear walls in one direction were really pretty sparse.
The other thing we noticed is that some of the columns at the base of the building retained their small size and were very heavily reinforced. If special mechanical splices weren’t used for that vertical reinforcement, by Code, they actually might be considered over-reinforced, which is not necessarily good. Sometimes too much rebar is not a good thing. Getting concrete consolidated around the rebar and the splices gets difficult with the more steel you put in there, and judging by some of the photos, there was punching shear failure at the ground level. It could be that one of those smaller columns, once it lost the lateral support of the slab, all of a sudden under that high compressive load, it wanted to buckle sideways. There was nothing to keep it from moving, and that could have led to loss of a column and then collapse throughout the building.
Danielson: What are high punching shear stresses and punching shear failure, and how may they have been a factor in this collapse?
Baldridge: From the permit drawings, this appears to be a reinforced concrete flat slab, about 8 inches thick in the tower. All the loads from that slab have to somehow get from the slab into the columns that support them, and there’s essentially a zone or ring in that slab where you’re looking at the shear stresses as those loads transfer into the column. If there’s not enough thickness or there’s something else going on at that joint, you can actually have a shear failure. It’s very unfortunate, because shear failures don’t give much warning, and the results are very catastrophic.
For example, if you have flexural overstress in a beam, you’ll typically see the beam starting to deflect too much. You’ll see cracking appearing in the bottom of a beam, or maybe at the top of the beams at the support. But you have some warning that something’s going on, just like they did with some of the corrosion.
But in a punching shear failure, oftentimes it would be very catastrophic, and it would just happen. What happens at that point is loads have to start redistributing to other columns, which can overload them. I saw a recent picture at the ground floor that showed there was punching shear failure of the parking deck. What happens at that point is the columns at the lower level now are spanning twice as tall as what they were designed for, and they could actually buckle in that situation—a collapse of other areas of the building.

(All images can be seen in a larger scale in this story's online version.)


(All images can be seen in a larger scale in this story's online version.)
Danielson: Hypothetically, if you were leading the forensic team for this collapse, what would you do?
Baldridge: Well, the first thing is you have to respect the process of rescue. Without deterring that process, if you can start to collect pieces of data, as you extract rubble from the pile, looking for survivors, that’d be an important part of the process.
Once the rescue efforts are completed, then you want to start going into the pile and collecting whatever data you can. Some of that might be collecting samples of concrete to see what is the actual strength of the concrete that was in place. You can look for reinforcing steel, make sure the steel was of the right grade of steel, as specified. Is there evidence of any columns where you saw significant corrosion in vertical reinforcement that would have reduced the capacity of columns? You have to start sifting through the rubble, hoping to find intact pieces you can actually take a look at and determine what was going on.
Danielson: Once they figure out what happened to this particular building, what should engineers be looking to learn from this event going forward?
Baldridge: Well, it’s really going to determine what they find. I mean, if they find that there were design deficiencies that contributed to it, maybe in Florida, when they recertify a building, they may want to have engineers also go back and look at the design for a few key elements of the building that might lead to a collapse like this.
A long time ago, there was a collapse in the UK, the Ronan Point building, that the British learned a lot from. In the U.S., it was more terrorism-related collapses, like the Murrah Federal Building and the Khobar Towers in Saudi Arabia that we learned from. I think we’ll find that the current Codes actually probably are sufficient, but there may be some things that you’ll learn from this about older buildings.

Danielson: Do you suspect that climate change played a role in this collapse?
Baldridge: I really doubt climate change had anything to do with it. Every building that’s on the coast has some exposure to saltwater and corrosion. I think they should be able to evaluate that fairly closely and see if there was any weakening of the concrete, just due to the salt spray. Again, I think the Codes have been updated progressively over the years to address durability, and especially durability in a salt environment. Lower-strength concrete actually has a higher permeability to corrosion intrusion, so it’ll be interesting to see if there’s anything on the upper floors.
And then just also to try to figure out if there were modifications that any of the owners made to the building that might have contributed to that. Were there any areas of the building that were overloaded that might’ve contributed? Hopefully, they’ll be able to find evidence of whether that happened or not.
Danielson: Briefly sticking on the climate change theme, what should engineers be doing to adapt to changing weather and climate, and how are you adapting in your own practice?
Baldridge: I think the big thing to start looking at is municipalities taking a good look at what they’re allowing to build or not build close to the shoreline, to the coast where you’re talking about climate change and you’re talking about sea-level rise. I think Miami has already started doing that. But you want to allow buildings to be built a little bit taller and raise the ground floor, and make sure you have the ability to address sea-level rises if it becomes an issue. For climate change for itself, all the studies that have been done on weather are historic, so it’s very difficult to predict in the future, will that have a change to the severity of tornadoes or the severity of hurricanes without having the data to figure that out.
Todd Danielson
Todd Danielson has been in trade technology media for more than 20 years, now the editorial director for V1 Media and all of its publications: Informed Infrastructure, Earth Imaging Journal, Sensors & Systems and Asian Surveying & Mapping.