Morgan North, the expansive, 645,000-square-foot redevelopment of what was once New York City’s largest postal distribution center into a multi-use, sustainable property housing creative office space, a multilevel rooftop park and street-level retail, won the 2024 NYCxDESIGN Award in the Outdoor Space category.


Erected in 1933, Morgan North’s site originally served as a railyard for the Hudson River Railroad and then as a U.S. Post Office distribution center. Rail tracks previously extended from the adjacent High Line spur into the second floor. (Tishman Speyer Properties)
Located at 351 9th Avenue in Manhattan, Morgan North encompasses an entire city block between 9th and 10th Avenues from West 29th to West 30th Streets. The building varies from a six-story to a 10-story structure along its West 30th Street frontage. Erected in 1933, the site originally served as a railyard for the Hudson River Railroad and then as a U.S. Post Office (USPS) distribution center. Rail tracks previously extended from the adjacent High Line spur into the second floor, resulting in a building with large footprints and increased structural capacities. The USPS continues to operate a mail-distribution facility on the cellar level and four lower levels of the building.



The 10th Avenue Lobby features a work/lounge area and an intimate lounge room reminiscent of a vintage railroad café car. (Joe Thomas)
Developer Tishman Speyer’s focus on occupant health and wellbeing is exemplified by Morgan North’s new, two-acre rooftop park, the largest intensive green roof atop a commercial building in New York City. This expansive customer amenity is an integral part of the comprehensive adaptive reuse of the building into a visionary 21st-century commercial office building. The building has received a LEED Gold certification.

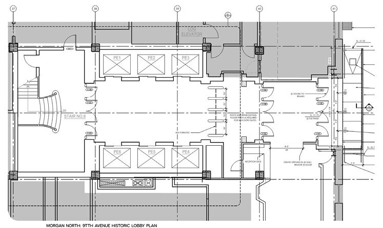
The building’s historic 9th Avenue lobby (above and below) has been restored.

The building’s historic 9th Avenue lobby has been meticulously restored, bringing its brass-framed entrance doors with an ornamental, double-height transom grille to its original beauty. In addition, Tishman Speyer and its architectural team created two new lobbies, one mid-block on West 30th Street and the other on the corner of 10th Avenue and West 30th Street.


The project team converted the formerly underutilized rooftop (top photos) into a two-acre rooftop park, the largest intensive green roof atop a commercial building in New York City. (Shimoda Design Group)

A rendering (above) shows the new 84,750-square-foot 7th Floor Garden Terrace; 30,000-square-foot pavilion roof and 8th and 9th Floor terraces; and 8,000-square-foot 11th Floor Tower Terrace. (HMWhite)
Levels 5 through 10 have been renovated with new lobbies, core support rooms, restrooms, stairs and 11 new elevators. The fifth and sixth floors boast floor plates of more than 180,000 gross square feet each. The architects introduced three massive 32-foot by 40-foot skylights along the center of the floor plate, which dramatically transformed the 5th and 6th floors, exposing the 5th floor to enhanced natural sunlight. Further, the volume from the 5th floor to the top of the interior of each of the skylights is 46 feet, which offers unique design opportunities for future customers.
The 7th floor’s new 30,000-square-foot pavilion features two 60-foot-wide clear span bays, a 17-foot-tall steel frame structure and a monumental skylight system. It’s the anchor access point to the massive Rooftop Park amenity space.



The Rooftop Park features a variety of spaces designed for collaborative work, recreation and quiet inspiration. The ground plane is infused with areas for field games, nature walks, food, beverage and covered gathering areas for work and play. (Joe Thomas)
Rooftop Architecture and Landscape Design
The total rooftop park size is two acres (112,750 square feet) of outdoor space. The outdoor areas include the 84,750-square-foot 7th Floor Garden Terrace; 30,000-square-foot pavilion roof and 8th and 9th Floor terraces; and 8,000-square-foot 11th Floor Tower Terrace. The 84,750-square-foot roof terrace has been completely reimagined as a landscaped oasis that offers a direct connection with nature, light and air.
Landscape design principles organized the creation of enhanced views, while shaping spaces to serve a variety of shared uses and scales of activity. Coniferous hedgerows are arranged to mitigate prevailing winds and are combined with groves of canopy trees to soften and cool harsh sunrays. Further, these landscape placemaking features extend seasonal use.
The landscape design is composed of a series of layers, which references Northeastern U.S. coniferous woodlands. It starts with the evergreen forest at the rooftop’s northern edge, transitions to a shrubland in its middle and then flows into a low-lying wildflower meadow at its southern roof boundary. Each space is developed within a visually distinct landscape designed to improve comfort and awaken seasonal sensibilities.
Team Morgan North
The project team includes developer Tishman Speyer; lead architect Richard J. DeMarco, AIA, Principal of MADGI; design architect Shimoda Design Group; and landscape architect HMWhite. Additional team members included construction manager Urban Atelier Group; structural engineer Active Design Group Engineering; MEP engineer and lighting designer Cosentini Associates; LEED consultant Vidaris/SOCOTEC; and historic-preservation consultant Higgins Quasebarth & Partners.
Landscape Architecture Highlights
• Elevated walkway at perimeter to allow views over parapet
• Varied plant types to create colorful micro-environments that promote varied seasonal experiences
• A variety of raised and sunken areas to create a feeling of natural topography
• Varied outdoor congregation area sizes to promote different types of activities—places for solitude as well as communal gatherings
Peter Wilk
Peter Wilk is the founder of Wilk Marketing Communications, a marketing and public relations agency focused on the AEC industries; email: peter@wilkmarketing.com.